GAMPRIN
Anbau, Umbau und Aufstockung Mehrfamilienhaus in Gamprin (FL)
Planung und Ausführung: 2014–2016
Mitarbeit: Daniela Voss, cand. Architektin MSc ETH
Bauleitung / Kostenkontrolle: Baumanagement Peter Büchel
Fotografie: Johanna Muther
GAMPRIN
Nordfassade
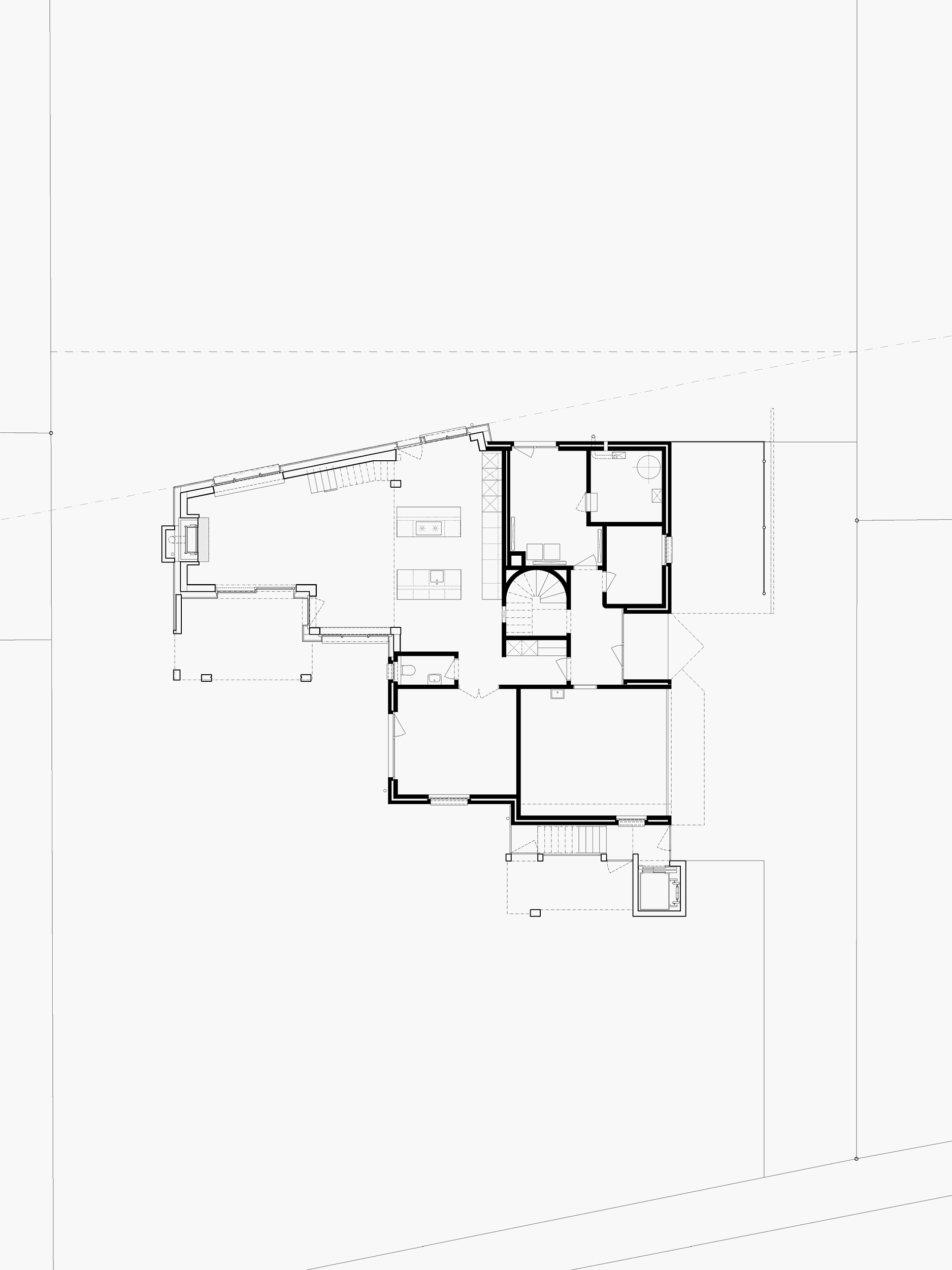
Erdgeschoss
Obergeschoss
Attikageschoss
Südfassade
Südfassade
Querschnitt
Nordfassade
Galerie
Wohnhalle
GAMPRIN
Anbau, Umbau und Aufstockung Mehrfamilienhaus in Gamprin (FL)
Planung und Ausführung: 2014–2016
Mitarbeit: Daniela Voss, cand. Architektin MSc ETH
Bauleitung / Kostenkontrolle: Baumanagement Peter Büchel
Fotografie: Johanna Muther