AUF BERG I

AUF BERG I

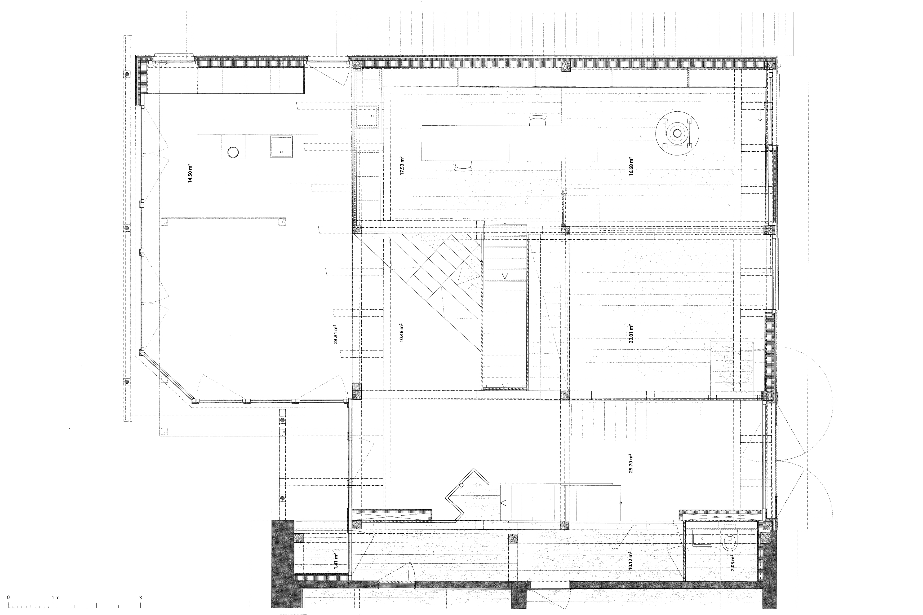
ground floor

ground floor

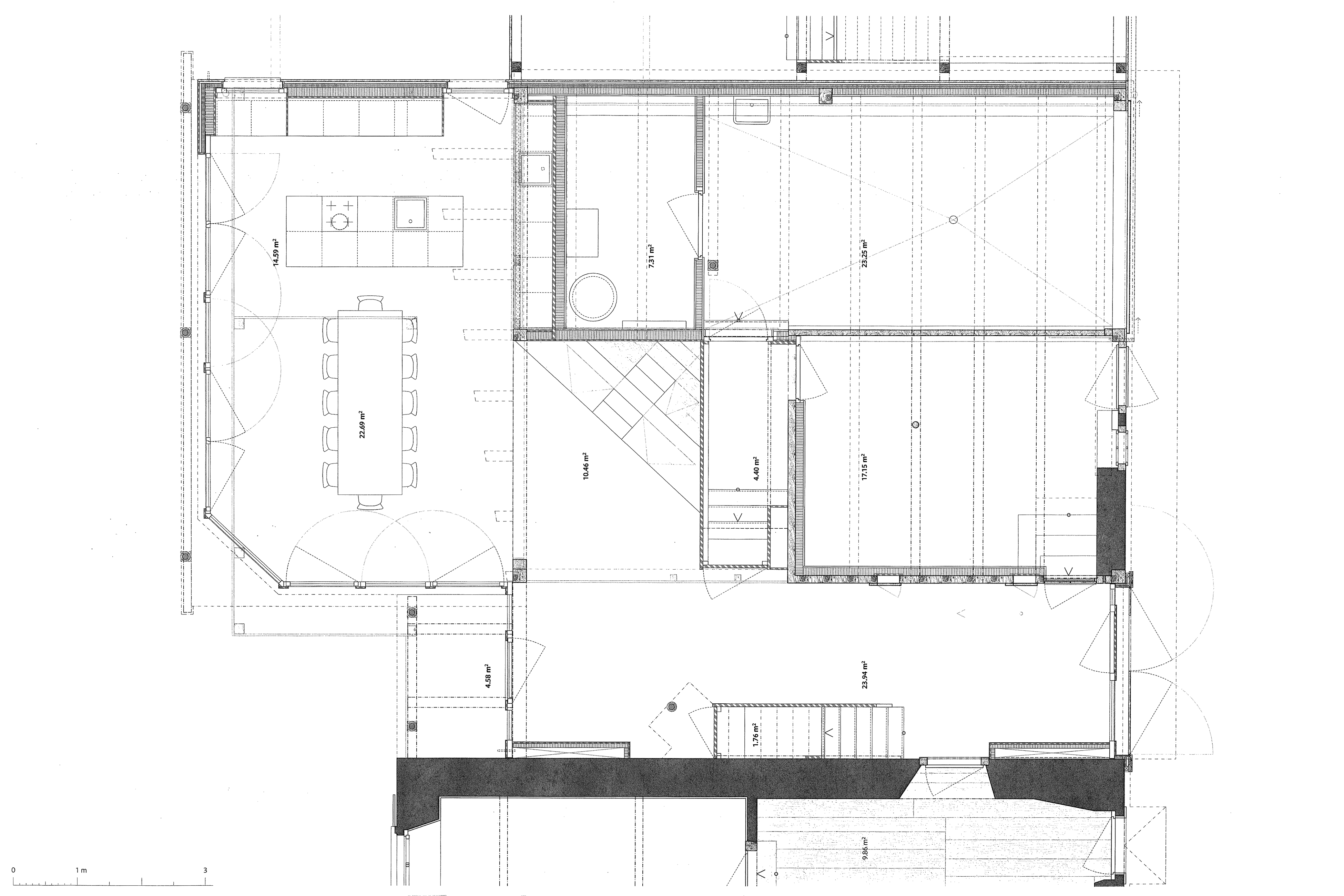
roof level

roof level

cross section

cross section

court

court

entrance facade

entrance facade

mezzanine

mezzanine

cross section

cross section

situation model

situation model

Auf Berg I
Conversion barn, Mauren (FL)
Planning: 2016–2018
Collaborator: Benoît Perrier, cand. Arch EPFL
Construction management: Baumanagement Peter Büchel