GREIFENSEE

GREIFENSEE

building structure

building structure

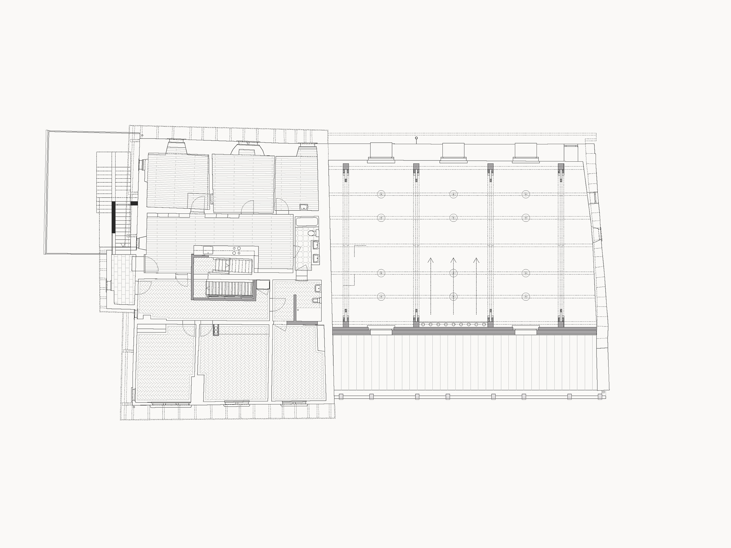
ground floor

ground floor

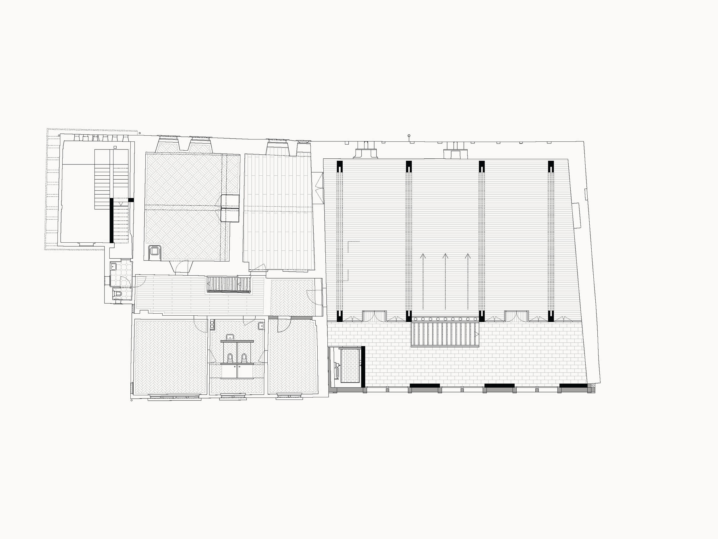
first floor

first floor

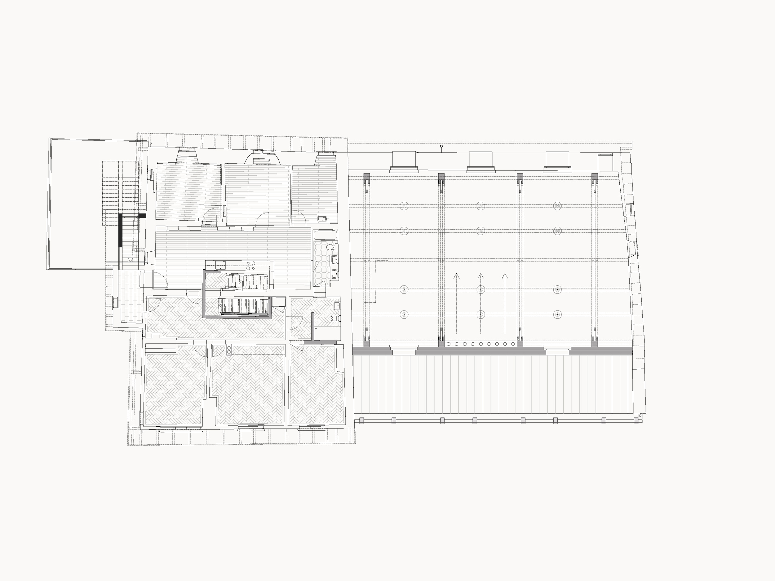
second floor

second floor

basement floor

basement floor

section

section

force diagram

force diagram

construction section

construction section

Greifensee
Music hall and bistro Landenberghaus, Greifensee ZH
Competition (open): Summer 2013